0

VENTE ECULLY 69130 MAISON NEUVE QUARTIER RESIDENTIEL CHATEAU DU VIVIER

Écully (69130)
Réf : 4637

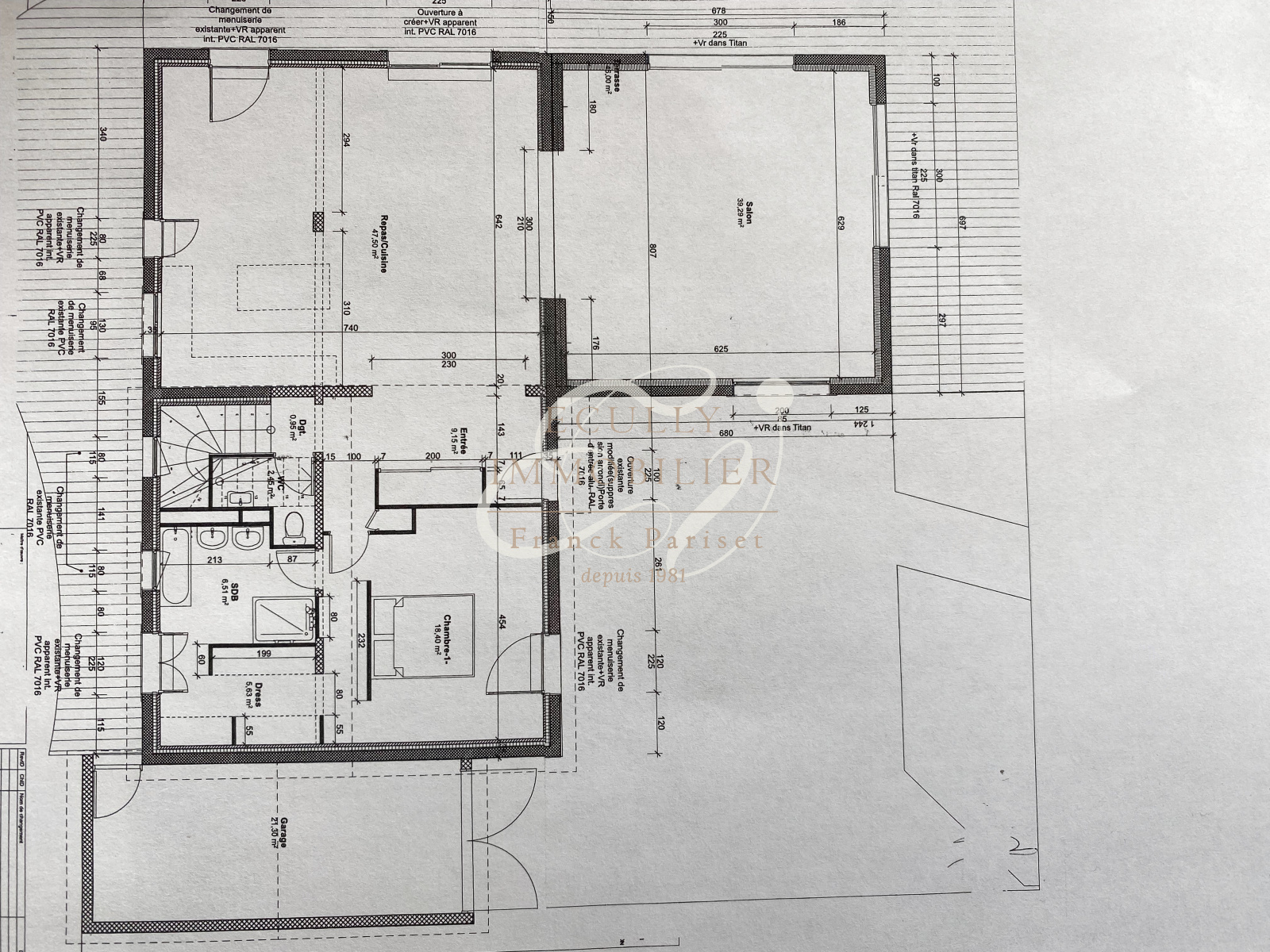
VENTE à ECULLY 69130. Une maison neuve située dans un quartier résidentiel (Chateau du vivier) au calme. Maison entièrement neuve offrant de beaux volumes de réceptions 87m² ouvrant sur une terrase et sur la piscine. Une cuisine équipée ouverte, une suite parentale de plain-pied avec sa salle d'eau, son dressing, un wc. A l'étage 4 chambres (9,25 - 9,70 - 13,25 - 36m²), une salle de bains et un wc. Le tout sur un terrain de 1 465m² avec piscine (8x4). Un garage de 21.30m². Quartier très calme, proche des transports scolaires (Sacré coeur - Laurent Mourguet - St Joseph).

Prix du bien Nous consulter
Pièce(s) 6
Chambre(s) 5

Caractéristiques du bien

Caractéristiques Valeurs
Code postal 69130
Surface habitable (m²) 215 m²
surface terrain 1 465 m²
Surface loi Carrez (m²) 215 m²
Nombre de chambre(s) 5
Nombre de pièces 6
Nombre de niveaux 1
Nb de salle de bains 1
Nb de salle d'eau 1
Cuisine Américaine
Type de cuisine SEMI-EQUIPEE
Terrasse OUI
Nombre de garage 1
Exposition Sud-Ouest
Quartier Chateau du VIVIER

Infos financières

Caractéristiques Valeurs