0
Sous-compromis
Exclusif

VENTE LYON 69007 - JEAN MACE 5MN GARE TER / METRO / TRAM, AU CALME, STUDIO 32M² DANS RESIDENCE RECENTE EN ETAG

Lyon (69007)
Réf : 5180A

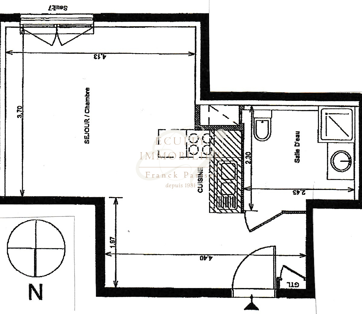
VENTE LYON 69007 - EXCLUSIVITE - SOUS COMPROMIS - Au calme, à 5mn à pied de la place Jean Macé (TER, métro B, tram T1, bus) et du nouveau campus de l'EM Lyon, à proximité des commerces de l'avenue Jean Jaurès, ce T1 de 32m² carrez, en étage élevé d'une résidence sécurisée, à taille humaine, récente, bénéficie d'une orientation sud. Adapté PMR, sa configuration est simple et fonctionnelle : entrée avec placard, pièce à vivre de plus de 25m² avec kitchenette à composer, grande salle d'eau avec douche, vasque simple et toilettes. Local vélos. Possibilité d'acquérir un garage de 14.5m² en sous-sol (30 000€) - Notre avis : pour habiter, en pied à terre ou investir (loyer de référence en nu 545€ + 55€ de charges incluant ascenseur, eau froide et chaude, entretien des commmuns) dans un quartier en pleine mutation avec toutes les commodités,infrastructures sportives et culturelles, à 9mn à pied des quais du Rhône, 11mn de Bellecour en vélo - 12mn vers l'ENS en métro et 14mn vers parc Gerland - accès aisé grands axes. Renseignements et visite auprès de Marie CLEMARES, agent commercial 06 42 30 40 30


Les informations sur les risques auxquels ce bien est exposé sont disponibles sur le site Géorisques
Prix du bien 165 000 €
Pièce(s) 1

Caractéristiques du bien

Caractéristiques Valeurs
Code postal 69007
Surface habitable (m²) 32 m²
Nombre de pièces 1
Etage 4
Nb de salle d'eau 1
Cuisine Kitchenette
Mode de chauffage Electrique
Type de chauffage Radiateur
Format de chauffage Individuel
Visiophone OUI
Nombre de garage 1
Exposition Sud
Année de construction 2009

Infos financières

Caractéristiques Valeurs
Prix de vente honoraires TTC inclus 165 000 €
Taxe foncière annuelle 690 €

Bilans énergétiques

DPE GES
Ce bien vous intéresse ?
Fieldset par défaut
Fieldset par défaut
Validation

* Champs obligatoires

Contacter l'agence
Validation
Les informations recueillies sur ce formulaire sont enregistrées dans un fichier informatisé par La Boite Immo agissant comme Sous-traitant du traitement pour la gestion de la clientèle/prospects de l'Agence / du Réseau qui reste Responsable du Traitement de vos Données personnelles. La base légale du traitement repose sur l'intérêt légitime de l'Agence / du Réseau. Elles sont conservées jusqu'à demande de suppression et sont destinées à l'Agence / au Réseau. Conformément à la loi « informatique et libertés », vous disposez des droits d’accès, de rectification, d’effacement, d’opposition, de limitation et de portabilité de vos données. Vous pouvez retirer votre consentement à tout moment en contactant directement l’Agence / Le Réseau. Consultez le site https://cnil.fr/fr pour plus d’informations sur vos droits. Si vous estimez, après avoir contacté l'Agence / le Réseau, que vos droits « Informatique et Libertés » ne sont pas respectés, vous pouvez adresser une réclamation à la CNIL. Nous vous informons de l’existence de la liste d'opposition au démarchage téléphonique « Bloctel », sur laquelle vous pouvez vous inscrire ici : https://www.bloctel.gouv.fr Dans le cadre de la protection des Données personnelles, nous vous invitons à ne pas inscrire de Données sensibles dans le champ de saisie libre.
Ce site est protégé par reCAPTCHA, les Politiques de Confidentialité et les Conditions d'Utilisation de Google s'appliquent.
Ces biens peuvent vous intéresser